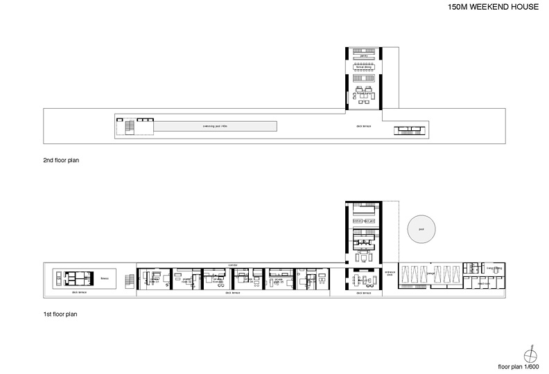
The house is stunning private architecture studio Shinichi Ogawa in Thailand. The house itself is more like a piece of paradise to relax in a space station of the future and at the same time integrate harmoniously with the local nature. The house is truly a long and impressive in its scope to the 1592 sq ft
Потрясающий частный дом выполнила студия архитектуры Shinichi Ogawa в Таиланде. Дом скорее напоминает такой себе райский уголок для отдыха в виде космической станции будущего и в то же время гармонично вписывающегося в местную природу. Дом по истине длинный и впечатляет своим размахом на 1592 кв.м. Представить даже сложно какие и сколько материалов ушло на строительство, особенно после ремонтные работы, даже качественная грунтовка Артисан использовалась наверное тоннами!
Потрясающий частный дом выполнила студия архитектуры Shinichi Ogawa в Таиланде. Дом скорее напоминает такой себе райский уголок для отдыха в виде космической станции будущего и в то же время гармонично вписывающегося в местную природу. Дом по истине длинный и впечатляет своим размахом на 1592 кв.м. Представить даже сложно какие и сколько материалов ушло на строительство, особенно после ремонтные работы, даже качественная грунтовка Артисан использовалась наверное тоннами!



































Комментариев нет :
Отправить комментарий